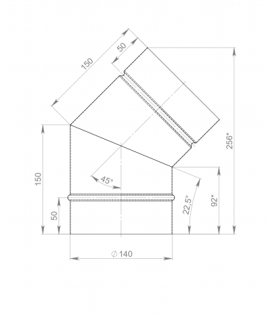
Колено дымоходное 45 градусов Ø 140 мм
В случае, когда купель с печкой располагается под навесов или внутри помещения и прямой дымоход упирается в элементы потолка, кровли и прочего – используется дымоходное колено 45 градусов. Дымоходное колено - это один элемент, которые позволяет повернуть «ход» трубы (дыма) на 45 градусов в желаемую сторону. Следом за коленом дымохода, как правило используется прямая дымоходная труба необходимой длины (обычно не более метра), далее используется еще одно колено, чтобы вернуть дымоходной магистрали вертикальное положение. Важно иметь в виду, что рекомендуется применять именно колено в 45 градусов, а не 90 градусов, так как угол в 90 градусов в значительной степени уменьшает тягу и способствует образованию на данном участке отложений продуктов горения и конденсата. Исходя из вышесказанного, стоит иметь в виду, что в 99% случаев, когда вам нужно «обойти» препятствия на пути дымоходной магистрали – вам необходимо иметь два колена 45 градусов и дополнительную прямую дымоходную трубу, которая может быть укорочена по необходимости. Также стоит знать, что при использовании в конструкции дымохода колена 45 градусов – его (конструкция дымохода) существенно теряет устойчивость и обязательно применение крепежных элементов (хомуты и прочее) для фиксации дымохода к устойчивым элементам (кровля, стены).
Все элементы дымоходной магистрали и крепежные детали вы можете приобрести у нас, что гарантирует качество и совместимость с нашими печами.
Материал
Размеры и вес
Транспортные габариты


